Мини козловой кран МПУ (Регулируемая высота подъема, г/п от 2 до 10 тонн)
Мини козловой кран МПУ (Регулируемая высота подъема, г/п от 2 до 10 тонн)
Грузоподъемность от 2000 до 10000 кг – мобильное решение для любых задач!
Мини козловой кран МПУ — это мобильное перегрузочное устройство, предназначенное для подъема, опускания и перемещения грузов на объектах, где отсутствуют стационарные грузоподъемные механизмы.
Мобильные перегрузочные устройства МПУ с регулируемой высотой подъема (телескопические опоры) — самое универсальное решение для подъёма грузов в помещениях с разной высотой помещения.
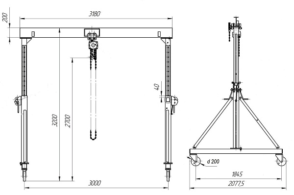
Особенность конструкции телескопических опор нашего крана, позволяет изменять высоту без потери грузоподъёмности. Регулировка выполняется одним оператором с помощью канатных лебедок. Колесные опоры, позволяют передвигать МПУ с поднятым грузом. Рекомендуются для работы с ручными г/п механизмами.Идеальное решение для строительно-монтажных, ремонтных и погрузочно-разгрузочных работ как в помещениях, так и на открытых площадках. Лёгкая конструкция и низкая стоимость делают их удобным и экономичным решением.
Ключевые преимущества:
✅ Универсальность
-
- Оснащается электрической талью или ручным г/п механизмом.
-
- Работает в условиях отсутствия стационарных крановых конструкций.
- Оснащается электрической талью или ручным г/п механизмом.
- Работает в условиях отсутствия стационарных крановых конструкций.
✅ Мобильность и удобство
-
- Передвижная конструкция козлового типа.
-
- Легко перемещается между объектами.
-
- Регулированная высота подъема грузов.
✅ Надежность и безопасность
-
- Грузоподъемность до 10000 кг.
-
- Соответствие требованиям промышленной безопасности.
✅ Гибкость под задачи
-
- Стандартная ширина — 3,0 м.
-
- Возможность изготовления шириной до 6,0 м под заказ.
-
- Высота подъема груза от 2,0 до 6,0 м.
Области применения:
-
- Строительные и монтажные площадки.
-
- Складские помещения без стационарной техники.
-
- Ремонтные и производственные цеха.
-
- Погрузочно-разгрузочные работы на открытых территориях.
💡 Важно: Мини подъёмник МПУ-проходит регулярные испытания и может использоваться в различных климатических условиях.
Рекомендуется проверять устройство перед началом работ!
Хотите приобрести мини подъемник, универсальный козловой МПУ?
- Строительные и монтажные площадки.
- Складские помещения без стационарной техники.
- Ремонтные и производственные цеха.
- Погрузочно-разгрузочные работы на открытых территориях.
💡 Важно: Мини подъёмник МПУ-проходит регулярные испытания и может использоваться в различных климатических условиях.
Рекомендуется проверять устройство перед началом работ!
Наши специалисты помогут подобрать конфигурацию под ваши задачи и организуют доставку.
Компания «ГлавКран»
☎ +7 (963) 152-96-67
Доставка по всей России.
Гарантия качества!
| Габаритные и весовые характеристики | |
|---|---|
| Грузоподъемность, кг | от 2000 до 10000 кг |
| Высота до балки (H min), м | от 2,0 до 6,0 |
| Телескопические опоры крана | Есть |
| Диапазон регулировки, м | до 2,0 |
| Канатная лебедка | Есть |
| Комплект поворотных колес | Есть, 4/6/8 шт. (150 или 200 мм) |
| Колёсные опоры | Есть, 4 шт. |
| Электрическая таль, тельфер с электроприводом | Опция |
| Грузозахватные отверстия | Есть |
| Нормативный документ на изготовление | ГОСТ 33168-2014, ГОСТ 23118-2012 |
| Температура эксплуатации, град. С | от -40 до +40 |
| Срок службы крана | Не менее 10 лет |
| Срок гарантийного обслуживания крана | 12 месяцев |





